skip to Main Content

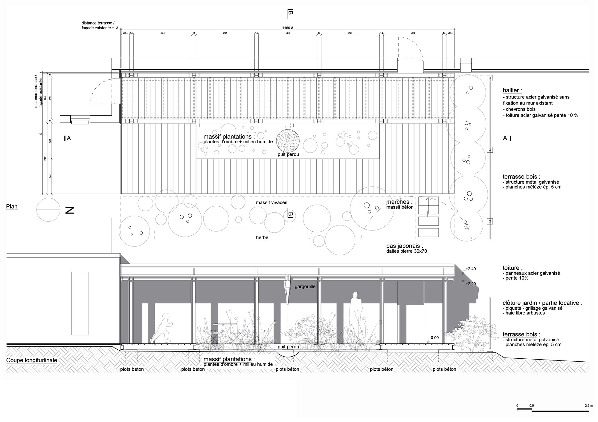
Rénovation d’un jardin à Montauville (54) – Maître d’ouvrage privé – Coût estimé des travaux : 60 000 € HT – avant-projet

jardin montauville-plan general
jardin montauville-croquis 1
jardin montauville-plan
jardin montauville-hallier facade
jardin montauville-croquis 2
Back To Top