Maison de santé à St Dizier Création d'une maison de santé pluriprofessionnelle à Saint-Dizier Maître d'ouvrage : SCI Paul Cezanne Coût prévisionnel des travaux : 3…
Groupe scolaire à Xeuilley Etude préliminaire pour la requalification des abords du groupe scolaire existant, pour la création d'un nouveau périscolaire dans une ancienne…
Maison Civet à Euville Etude préliminaire pour la restauration et la transformation de la maison Civet et de ses abords sur le site des…
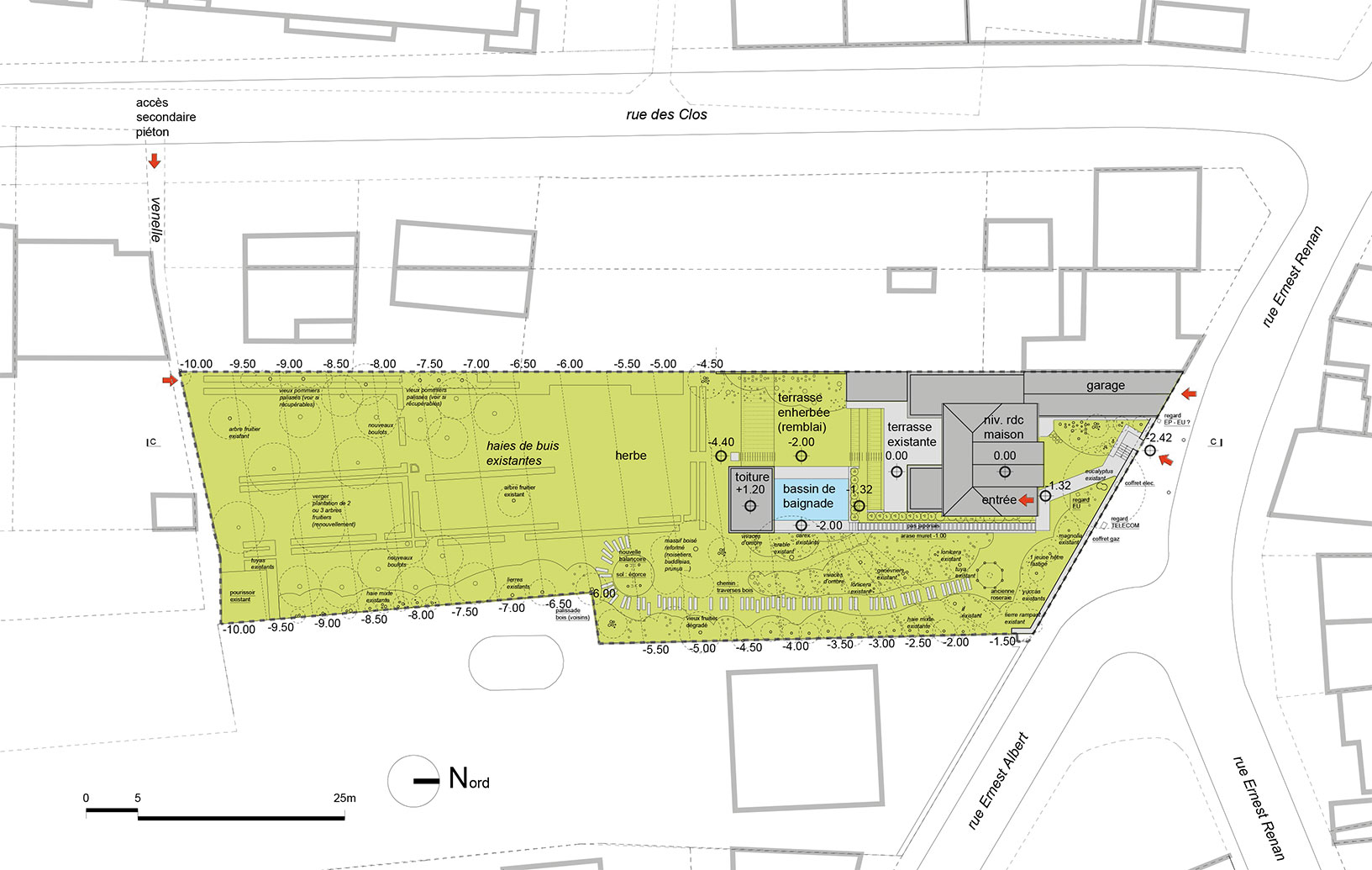
Extension de maison Extension pour une maison d'habitation à Lay-Saint-Christophe (54) Maître d'ouvrage : privé Coût prévisionnel des travaux : 210000 € HT…